Votre satisfaction est ma priorité
Philippe OLIVIER conseilller immobilier sur le secteur de CORLAY

22320 Saint-Martin-des-Prés
Maison noble du XVIIe siècle, au calme de la campagne. - Réf 141_PHR2-0018002

346 000 €












Votre conseiller immobilier Noovimo pholivier@noovimo.fr vous propose :
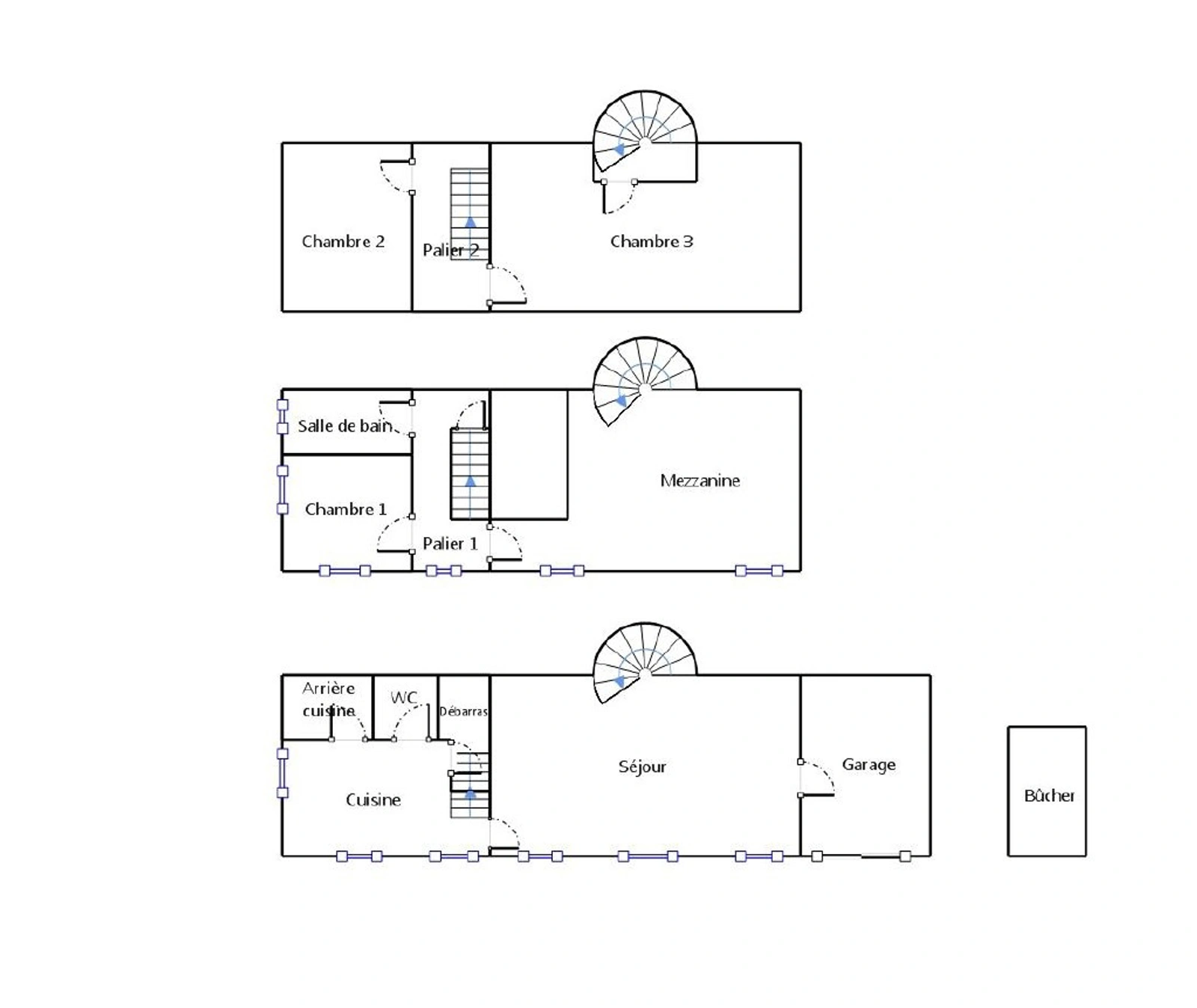
Maison noble du XVIIe siècle à 30 minutes de Saint-Brieuc composée:


Rez-de-chaussée :

Cuisine aménagée et équipée : Une cuisine fonctionnelle, alliant l'authenticité de l'époque avec des équipements modernes.
Arrière-cuisine/buanderie : Une zone pratique pour les tâches ménagères et le stockage.
Séjour avec cheminée : Un espace de vie élégant et chaleureux, centré autour d'une cheminée ouverte, typique des maisons de cette époque.
WC : Des commodités modernes au rez-de-chaussée.


Pièce annexe avec baie vitrée et une porte communiquant avec le salon, pouvant être transformé en chambre parentale.



Premier étage :

Salon avec poêle : Un espace de détente supplémentaire, peut-être avec un poêle à bois pour ajouter une touche de confort.
Chambre : Une chambre principale avec des éléments d'époque, comme des poutres apparentes.
Salle d'eau et WC : Une salle de bains attenante à la chambre, offrant un certain luxe.



Second étage :

Chambre : Une autre chambre spacieuse, peut-être destinée à des invités ou à d'autres membres de la famille.
Grande pièce (dortoir) : Une salle polyvalente, pouvant servir de dortoir pour des invités occasionnels, d'espace de loisirs ou de bureau.



La couverture de chaume donne à la maison une ambiance pittoresque, tandis que les matériaux en pierre et les éléments architecturaux du XVIIe siècle ajoutent un caractère noble et historique.
L'ensemble de la propriété reflète un mélange harmonieux entre l'authenticité de l'époque et le confort moderne, créant ainsi un lieu unique et plein de charme.
Chauffage avec un poêle à pellets. Deux terrains complètent ce bien.
Prix de vente 335 000 EUR + 11000 EUR d'honoraires. Soit 346 000 EUR honoraires inclus. Honoraires à la charge de l'acquéreur. Nos honoraires sont consultables sur : www.noovimo.fr. Votre agent commercial inscrit au RSAC de Saint brieuc No RSAC 818 058166.
'Les informations sur les risques auxquels ce bien est exposé sont disponibles sur le site Géorisques http://www.georisques.gouv.fr'
Pour voir toutes mes annonces : https://pholivier.noovimo.fr/fr













1 - Annonce rédigée et publiée par un Agent Mandataire -
Partager le contenu sur mes réseaux :
Me contacter
Voir le téléphone
Loading...
Les informations recueillies sur ce formulaire sont enregistrées dans un fichier informatisé par Philippe OLIVIER pour gérer votre demande de contact. Elles sont conservées pour la durée nécessaire à la gestion de la relation client dans le respect des prescriptions légales applicables et sont destinées au responsable de la publication de ce site : Philippe OLIVIER.
Conformément à la loi « informatique et libertés », vous pouvez exercer votre droit d'accès aux données vous concernant et les faire rectifier en contactant Philippe OLIVIER pholivier@noovimo.fr ou en utilisant ce formulaire. Nous vous informons de l’existence de la liste d'opposition au démarchage téléphonique « Bloctel », sur laquelle vous pouvez vous inscrire ici : https://www.bloctel.gouv.fr/
Vous ne trouvez pas votre bonheur ? Votre projet d'achat
Bilan énergétique
DPE_ passoire énergétique logement extrêmement performant logement extrêmement peu performant consommation (énergie primaire) 222 kWh/m²/an émissions* 6 kgCO2/m²/an
DPE_ * Dont émissions de gaz à effet de serre peu d'émissions de CO2 émissions de CO2 très importantes 6 kgCO2/m²/an
Noovimo, société au capital de 10000.00 euros. Siège social : 29 Romain Rolland 44100 Nantes. N° de TVA intracommunautaire : FR75793556051. RCS NANTES immatriculé(e) 793556051.
Le titulaire de(s) carte(s) professionnelle(s) est Noovimo, société au capital de 10000.00 euros dont le siège social est situé au 29 Romain Rolland - 44100 Nantes et immatriculée au RCS Nantes - Siret : 79355605100027.

Carte T : 44012018000028735. Date de délivrance : NC. Lieu de délivrance : CCI DE NANTES. Caisse de garantie financière : AXA ASSURANCE. N° de caisse de garantie : NC. Adresse de la caisse de garantie : NC. Montant de la garantie financière : 110000 euros.
Conformément aux articles L611-1 et suivants et R612-1 et suivants du Code de la consommation, le consommateur est informé qu’il a la possibilité de saisir un ou notre médiateur de la consommation, à savoir MEDIATION – VIVONS MIEUX ENSEMBLE situé 465 avenue de la Libération 54000 NANCY - email : mediation@vivons-mieux-ensemble.fr - site : www.mediation-vivons-mieux-ensemble.fr
Barème d'honoraires